‹ All Floor Plans ‹ Legacy Series › Megan
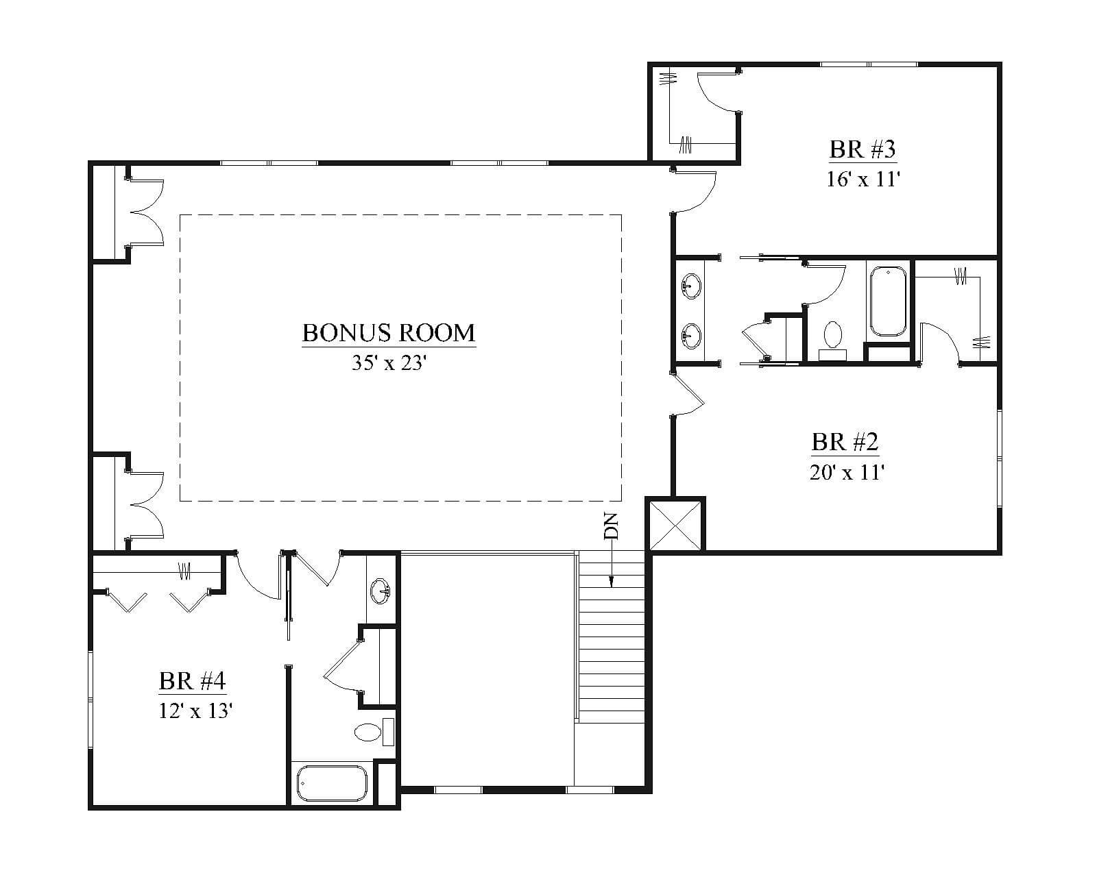
Features: 3 car garage, covered porch, main floor master bedroom, office, bonus room
3 car garage, covered porch, main floor master bedroom, office, bonus room
↓ Click on a photo to enlarge ↓