‹ All Floor Plans ‹ Legacy Series › Monterey
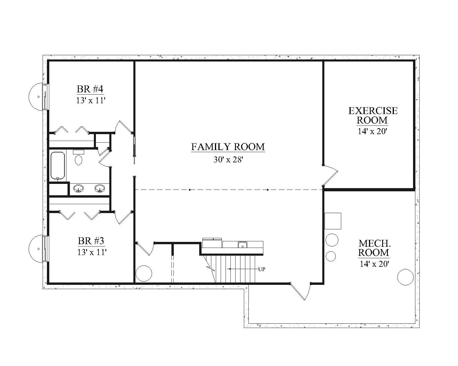
Features: 3 car garage, main floor master bedroom, front and back covered porch, finished basement family room
3 car garage, main floor master bedroom, front and back covered porch, finished basement family room
↓ Click on a photo to enlarge ↓